Get in touch with us

10 bedroom Property in Lisbon

REF: JL-85420

District: Lisboa
Municipality: Lisboa
Parish: Alvalade
Property Type: Townhouse
Beds: 10
Bathrooms: 10
Garden
Balcony
Gym
Outdoor Parking
Garage
Video Intercom
Unit Property Type Floor Bedrooms Parking Area (SQM) Outdoor Area (SQM) Price Floorplan

About 10 bedroom Property in Lisbon

Get to know the property
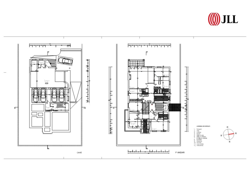
10-bedroom house, multi-family property with 788 sqm of gross construction area, garden and garage, consisting of three independent apartments, set on a 1057sqm plot, on the prestigious Avenida de Santa Joana Princesa, in the Alvalade neighborhood, Lisbon.

The apartments are composed as follows:The 2+2 bedroom apartment has an entrance hall, two bedrooms (one en-suite), living room, dining room, office, kitchen, two bathrooms, and a balcony.

The 4+1 bedroom duplex apartment features an entrance hall, two living rooms, kitchen, laundry room, balcony, four bedrooms (two en-suite), and four bathrooms.

The 4+2 bedroom duplex apartment consists of an entrance hall, four bedrooms (one en-suite), living room, kitchen, guest bathroom, and balcony.

Additionally, it includes an antechamber, a room with an open-plan kitchen, and a full bathroom.

A unique investment opportunity, with flexibility to adapt to the new owner's needs.

Although it requires updating, it maintains enormous potential, with the option to maintain the current multi-family structure or be transformed into a single-family home.

Located in Alvalade, one of Lisbon's most iconic neighborhoods, known for its excellent quality of life, safety, and family-friendly environment.

The strategic location offers easy access to various parts of the city, an 8-minute walk from Alvalade metro station. A 10-minute drive from Santa Maria Hospital, 20 minutes from the 25 de Abril Bridge, a short distance from the city's main road axes, and 6 minutes from Humberto Delgado Airport.

Similar Properties

See other developments
AVAILABLE
€1,080,000
3
214
REF: RS-R21479Piso1e0
AVAILABLE
€185,000
N/A
REF: EVW-047BK1
AVAILABLE
€1,450,000
4
476
REF: RS-R21094AA
AVAILABLE
€790,000
Land
Alenquer, Lisbon
3432
REF: JL-69696
AVAILABLE
€450,000
Apartment
Oeiras, Lisbon
1
79
REF: JL-88722
AVAILABLE
€0 - €0
Apartment
Lisbon
N/A
REF: PW6138