Get in touch with us

3 bedroom Property in Óbidos

REF: JL-96419

District: Leiria
Municipality: Óbidos
Parish: Amoreira
Property Type: Apartment
Beds: 3
Bathrooms: 2
Equipped Kitchen
Balcony
Fireplace
Outdoor Parking
Dishwasher
Fridge
Oven
Washing Machine
Unit Property Type Floor Bedrooms Parking Area (SQM) Outdoor Area (SQM) Price Floorplan

About 3 bedroom Property in Óbidos

Get to know the property
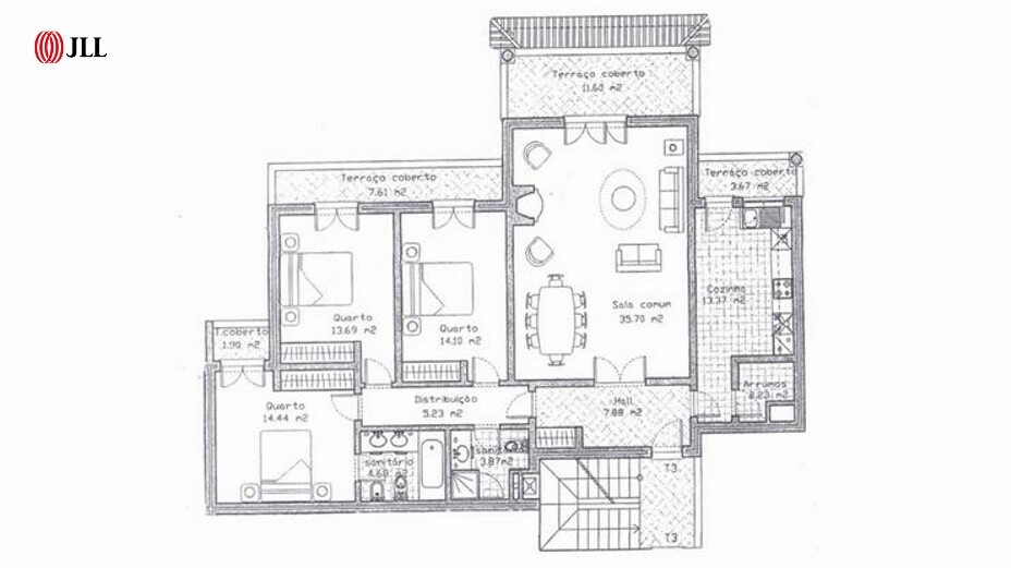
3-bedroom apartment with 139 m² of private gross area at Praia D'el Rey Resort, with balcony, located in Aldeia das Caravelas, Óbidos.

The apartment, functionally distributed, comprises three bedrooms, one of them en-suite, two bathrooms, a fully equipped kitchen, living room, storage areas and circulation spaces.

It also features three covered terraces, where one can enjoy the surrounding gardens and a heated communal swimming pool, ideal for leisure moments.

Praia D'El Rey Resort offers an exclusive lifestyle, by the sea, with excellent services, restaurants, direct access to the beach and an 18-hole golf course of international reference, integrated in the cluster of 4 golf courses in the West region.

Surferscove, the new artificial wave pool, complements the sports offer, becoming a hub of attraction for surf lovers and families.

Located 5 minutes walking distance from the Club House and restaurants of Praia D'el Rey Resort. 10 minutes walking distance from the beach and direct access to the sand. 15 minutes driving distance from the historic center of Óbidos, one of the most emblematic medieval towns in Portugal. 20 minutes from Baleal and its internationally renowned surf beaches. 25 minutes from Peniche, with direct connection to the Berlengas Islands. 30 minutes from Caldas da Rainha and its cultural and thermal offer. 1 hour from Lisbon and Humberto Delgado Airport, with easy access via the A8, ensuring excellent national and international accessibility.

Similar Properties

See other developments
AVAILABLE
€1,330,000
3
163
REF: EVW-02UNER
AVAILABLE
€595,000
2
85
REF: EVW-030X3R
AVAILABLE
€420,000
3
114
REF: BL1294 (J)
AVAILABLE
€547,750
3
124
REF: RS-R21397T
AVAILABLE
€375,000 - €753,000
Building
Almada, Setúbal
2138
REF: DL23563
AVAILABLE
€325,000
Apartment
Vila Nova de Gaia, Porto
1
168
REF: RS-R21555