Get in touch with us

Flat T1 Sell in Aldoar, Foz do Douro e Nevogilde,Porto

REF: RS-R21793C

District: Porto
Municipality: Porto
Parish: Aldoar, Foz do Douro e Nevogilde
Property Type: Apartment
Beds: 1
Bathrooms: 0
Central heating
A/C
Lift
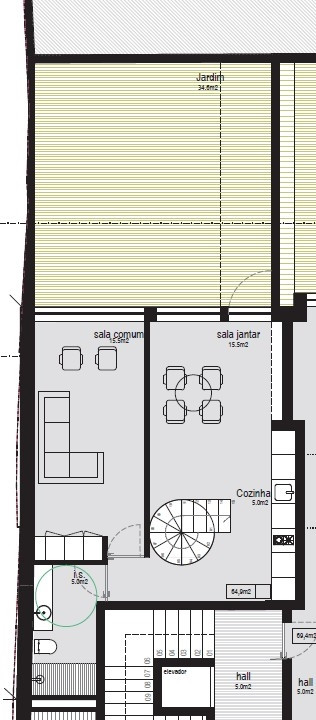
Unit Property Type Floor Bedrooms Parking Area (SQM) Outdoor Area (SQM) Price Floorplan

About Flat T1 Sell in Aldoar, Foz do Douro e Nevogilde,Porto

Get to know the property
T1 Duplex with Garden and Balcony in Foz Velha

Very charming apartment with a gross area of ​​165 m2 and an external area of ​​35 m2, with the living room and bedroom having access to the outside.

Located in one of the most exclusive areas of Porto, this new residential project in Foz do Douro stands out for its contemporary architecture, excellent finishes and unique surroundings between the river and the sea.
This is a boutique development consisting of 10 one-bedroom apartments, designed for an audience that values ​​design, comfort and exclusivity. The concept was developed to meet the high demand for premium housing in this area, whether for personal use or as an investment — whether for short-term or long-term rental.

The apartments were designed with special attention to functionality and luminosity, featuring balanced areas and generous balconies that promote a fluid connection with the outdoors.

High-Standard Finishes and Equipment
High-resistance natural wood floors;
Kitchens equipped with top-of-the-range appliances;
Bathrooms clad in natural stone;
Efficient and sustainable air conditioning systems;
High-performance thermal and acoustic windows.

Location:
Highly prestigious area with historical charm
Foz do Douro is known for being one of the most valued areas of Porto: coastal, elegant, with a strong component of quality residential properties.
The "Old Foz" (the oldest part of Foz) also adds a touch of authenticity and tradition, which can further enhance the value of the location for living or investment.
Proximity to the sea and the river
Being in a space where you can access the sea and/or the river — that is, the coastal area of ​​Foz — offers quality of life: walks along the waterfront, better microclimate (winds, tides), special views.
This generally contributes to higher demand, both for permanent residents and for vacation rentals.
High investment potential
Due to the premium location, the property here has a good chance of maintaining or appreciating the investment.

If you´re looking to rent — especially for short-term (tourism) or long-term stays — the area tends to be in high demand due to its "well-positioned" location.
Amenities nearby
Even though it´s a residential area, Foz do Douro has cafes, seaside restaurants, small neighborhood shops, gardens or green spaces, terraces — all of which contribute to its attractiveness.
Visit us!

Location

Get to know the area

Similar Properties

See other developments
AVAILABLE
€245,000
17
REF: DL31930
AVAILABLE
€525,000
2
95
REF: PP175306
AVAILABLE
€3,350,000
N/A
REF: EVW-02QZWP
AVAILABLE
€875,000
Townhouse
Grândola, Setúbal
2
131
REF: JL-79039
PRE-RESERVED
Pre-Reserved
Apartment
Lisbon
1
75
REF: PW375
PRE-RESERVED
Pre-Reserved
Apartment
Lisbon
2
N/A
REF: PW359