Get in touch with us

Flat T3 Sell in Canidelo,Vila Nova de Gaia

REF: RS-R21386

District: Porto
Municipality: Vila Nova de Gaia
Parish: Canidelo
Property Type: Apartment
Beds: 3
Bathrooms: 0
Seaside
A/C
Lift
Indoor Parking
Video Intercom
Dishwasher
Oven
Refrigerator
Sea View
River View
Unit Property Type Floor Bedrooms Parking Area (SQM) Outdoor Area (SQM) Price Floorplan

About Flat T3 Sell in Canidelo,Vila Nova de Gaia

Get to know the property
Luxury T3 on the seafront in Canidelo Gaia
Located on the Canidelo Marginal, next to the Douro Estuary Local Nature Reserve.

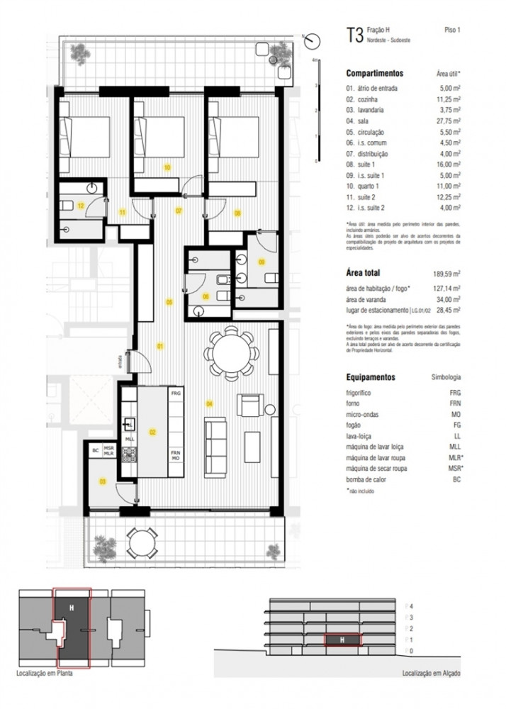
Apartment, facing northeast/southwest, on the 1st floor, with a useful area of ​​127, 14m2, and 34m2 for two balconies, benefiting from all rooms sea and river views and unique light; There are also two parking spaces (28.45 m2) on floor -1.

The 5m2 entrance hall leads to a nice 27.75m2 room with balcony. It also connects to the services part with the equipped kitchen (11.25 m2) and laundry room (3.75 m2) with use of the balcony.

To the bedroom side, there is another 5.5m2 hall, with access to a guest bathroom (4.5m2) and support for the bedroom (11m2); followed by the two suites (16m2 + 5m2 of bathroom and 12.25m2 + 4m2 of bathroom); all rooms have a balcony.
Integrated into the Douro Atlântico II development; Still under construction, delivery is expected in October 2024.

It is a project that stands out for its modern architecture and excellent location, placing the River and the Sea in a single landscape. Distinguished by attention to every detail, the interior of the apartments benefits from natural light, excellent acoustic and thermal insulation and large spaces that extend into spacious and refined balconies. The Douro Atlântico II apartments have everything you need for a quality experience, as you always dreamed of.

With excellent construction quality and a superior level of finishes, paying attention to details that provide a comfortable, sophisticated and modern environment.
The views of the river and the sea give all apartments the tranquility, well-being and privacy so desired. Facing the source of the Douro River and the Atlantic Ocean, Douro Atlântico is located in one of the most emblematic places in Porto: the Vila Nova de Gaia waterfront.

The excellent location of this development puts services and access even closer. Discover some of the perks of living in the largest city in the North of Portugal: Cais de Gaia, several bars, Arrábida and Gaia Shopping, Port Wine Cellars, WOW, Antiga Seca do Bacalhau, Parque de S. Paio and Parque de Lavadores.
3D photos

Location

Get to know the area

Similar Properties

See other developments
AVAILABLE
€630,000
Apartment
Funchal, Madeira
3
141
REF: PP173463
AVAILABLE
€1,480,000 - €3,050,000
Building
Cascais, Lisbon
8556
REF: DL28119
AVAILABLE
€198,500
Apartment
Lisbon
1
35
REF: PW2331
AVAILABLE
€285,000
59
REF: DL35620
AVAILABLE
€395,000
Apartment
Alcobaça, Leiria
2
84
REF: BL1103