Get in touch with us

Land for Sale in Lisbon

REF: JL-77306

District: Lisboa
Municipality: Lisboa
Parish: Belém
Property Type: Land
Beds: 0
Bathrooms: 0
Train
Unit Property Type Floor Bedrooms Parking Area (SQM) Outdoor Area (SQM) Price Floorplan

About Land for Sale in Lisbon

Get to know the property
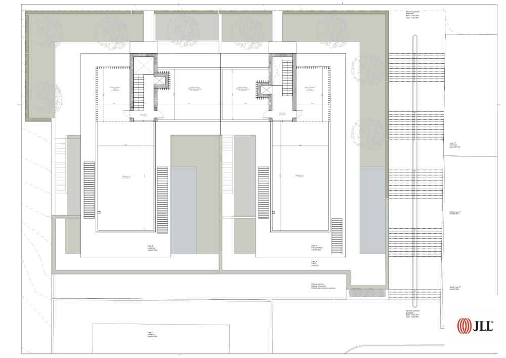
Land with 1379 sqm, sold with an approved architectural project for the construction of two contemporary-style semi-detached houses with a pool and garden in Belém, Lisbon.

The architecture project, in the approval phase, includes the construction of two semi-detached houses with a T6 typology, with a 1-meter difference in height between them, each with two floors plus a semi-basement floor, pool, garden, private terraces, and a garage for four vehicles.

The project includes the following total areas:Site area: 468.63 sqm Housing floor area: 951.18 sqm Basement area: 458.50 sqm Permeable surface: 431.61 sqm Total facade height: 10.41 sqm

On the lower level, there is a garage for four vehicles, a distribution hall with vertical access (elevator and stairs) to the other floors, a technical area, storage space, laundry area, and a bedroom with a bathroom.

On the ground floor, there is the main entrance, a garden with access to the pool, and the social area of the house comprising a distribution hall with vertical access to the other floors, a living and dining room, an open-plan kitchen with an island, a guest bathroom, and a suite with a walk-in closet.

On the first floor, there is the private area of the houses, with a secondary entrance, a distribution hall with vertical access to the other floors, four complete suites, and three terraces.

The rooftop level includes a covered volume with vertical access to the other floors and a distribution hall, technical areas (HVAC, heat pumps, hot water systems, photovoltaic panels), and a panoramic rooftop area with views of the mountains and the sea.

Located in the Restelo neighborhood, close to several monuments such as the Jerónimos Monastery, Belém Cultural Center, Padrão dos Descobrimentos, Belém Tower, and Ajuda National Palace.

It is also near the Alegro shopping center, IKEA, and Makro.

Within a 5-minute drive, you can find prestigious public and private schools such as Restelo Secondary School, Raiz School, and Pa

RK International School.

It is a 10-minute drive from the center of Lisbon and about 20 minutes from Humberto Delgado International Airport.

Similar Properties

See other developments
AVAILABLE
€525,000
2
95
REF: PP175306
AVAILABLE
€3,990,000
Townhouse
Cascais, Lisbon
5
457
REF: JL-91623
AVAILABLE
€1,995,000
4
374
REF: PP176242
AVAILABLE
€515,000
Townhouse
Grândola, Setúbal
1
55
REF: DL33567
AVAILABLE
€708,500
3
104
REF: EVW-047X46
AVAILABLE
€2,000,000
Land
Grândola, Setúbal
N/A
REF: DL33773