Get in touch with us

The Lagos Marina Apartment

REF: PW2972

District: Faro
Municipality: Lagos
Property Type: Apartment
Beds: 2
Bathrooms: 2
Outside
Pool
Seaside
Amenities
Heating
Storage
Concierge Service
Closed Condominium
Lift
Garden
Balcony
Fireplace
Alarm
Street Parking
Outdoor Parking
Unit Property Type Floor Bedrooms Parking Area (SQM) Outdoor Area (SQM) Price Floorplan

About The Lagos Marina Apartment

Get to know the property

This bright and spacious 2-bedroom apartment has just undergone a thorough and spectacular renovation by a reputable construction company.

Located at the Lagos Marina in the southwest of Portugal´s Algarve region, this location is difficult to better.

It is rare to find an available property with such quality in an area that is hugely popular with foreigners and Portuguese alike.

Whether you are a family looking for a place to call home in a warm and welcoming community or an investor for yield return and appreciation. This property and the surrounding areas will no doubt please its owner and inhabitants.

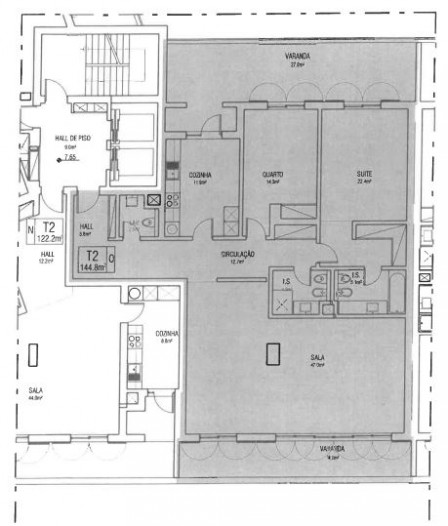
This 1st-floor property features

: Two spacious double bedrooms with fitted storage units.

: Two modern and spacious bathrooms, one of which is an en suite that serves the master bedroom.

: A guest WC

: A 47 m2 living and dining area which opens up to a 14 m2 terrace.

: A generous 28m2 rear terrace which is accessible through the kitchen and both bedrooms.

: A 12 m2 kitchen which is fitted with all new appliances

: Ample storage throughout

: Allocated underground parking.

: Located inside a well-maintained building served by double elevators.

 

Lagos features some of the most stunning beaches in the Algarve which only add to the abundance of central and surrounding natural beauty. Meia Praia beach is one of the longest open strips of coastline in the south of Portugal and is enjoyed year-round by locals and tourists, whether they be sunbathing, surfing, or feasting at one of the many fresh fish restaurants. In fact, the entire coastline around Lagos is simply magnificent, The beaches of Praia Dona Ana and Porto da Mos are protected by the horseshoe cliffs and offer excellent public facilities. Trendy cocktail bars and boardwalk restaurants provide a front-line platform for a sunset beverage.

Surfers, watersports enthusiasts, and families looking for outdoor activities are all well catered for in Lagos. Catamaran and boat trips to the Benagil caves leave from the town´s central Marina which in itself is a popular and busy strip of restaurants and bars. Jet ski hire, fishing trips, enormous waterparks, Lagos Zoo, international Golf courses, and forest adventure parks are all within easy access from the town center.

Quaint and calm fishing villages are peppered along the southwest coastline towards Sagres (which is the most western point in mainland Europe), the lush green mountains of Monchique provide the perfect backdrop and offer some tremendous walking and cycling trails and there is no better way to end a day on the mountains than visiting one of the natural hot spring resorts.

The historical center of Lagos is where all the action takes place. Local and international restaurants turn out mouthwatering dishes using the very best of local produce, cozy terraces seat people from all over the world and are ideal spots to meet new people.

The vibrant organic market occupies the town's largest car park every Wednesday (in addition to the daily and weekend markets)

Families that are looking to make Lagos home would be happy to learn that the area has impressive options for both state and international schools. The International primary school of Barlavento and the secondary school of Vale Verde are both within 15 minutes drive from Lagos town center and offer international curriculums to a wide range of nationalities.

The municipal facilities include the impressive (and renovated) public swimming pools in the sports center. This complex also accommodates a Gymnasium, yoga school, and other sports classes. Lagos Tennis and Padel court is just one of the open court options.

The Cultural and Performing Arts Centre manages a busy program with a wide range of performances, Lagos cinema screens reel the latest movies in both Portuguese and English.

Whether your Lagos property is a place to call home or an investment for yield return in one of the most popular tourist destinations in the country, this town, and its lucky inhabitants will offer you the warmest of welcomes into a strong and peaceful community. Algarvian arms are often wide open.

Distances to local points of interest

  • Lagos Marina is on your doorstep
  • The large Pingo Doce supermarket and restaurant is just across the street
  • The historical center of Lagos is just 1 km or a 12-minute walk
  • The municipal swimming pools and gymnasium are just 900 meters or an 11-minute walk
  • Lagos Tennis and Padel Club is just 1km or a 12-minute walk away.
  • Meia Praia Beach is just 1.1km or a 14-minute walk
  • The international primary school of Barlavento is just 6.6km or a 9-minute drive
  • The international secondary school of Val Verde is just 11km or a 14-minute drive
  • Faro international airport is an hour's drive away
  • Bars, restaurants, and cafes are just a few minutes walk away.

 

To find out more about the area, read the guide to Algarve. Also, view all available houses for sale in Lagos here.

 

Please contact us today for more information on this excellent Marina apartment!

 

Location

Get to know the area

Similar Properties

See other developments
AVAILABLE
€550,500
2
115
REF: EVW-02R4CH
AVAILABLE
€5,400,000
5
604
REF: DL33194
AVAILABLE
€975,000 - €1,010,000
Apartment
Albufeira, Faro
119
REF: PP175774
AVAILABLE
€345,000 - €345,000
Building
Vila Nova de Gaia, Porto
506
REF: DL27472
AVAILABLE
€1,080,000 - €1,440,000
Building
Porto
688
REF: DL26516